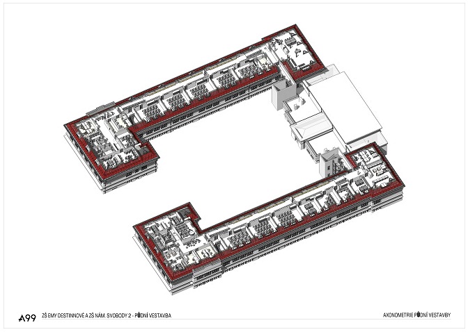
Půdní vestavba ZŠ nám. Svobody a ZŠ E. Destinnové
V základních školách dojde k navýšení kapacity o 240 žáků díky tomu, že v půdních vestavbách vzniknou kmenové třídy, odborné učebny, studovny, knihovna, herna, keramická dílna, PC učebna, kabinety a odpovídající hygienické zařízení.
Ve vnitrobloku budou vybudovány nové schodišťové věže s výtahy a v objektu ZŠ nám. Svobody 2 vznikne kuchyně.
Předpokládané náklady na realizaci půdních vestaveb: 98 mil. Kč
Začátek stavby: Červenec 2021
Konec stavby: Srpen 2022
Staví se schodišťové věže, buduje se podlaha v půdě a začínáme zateplovat. Start školního roku jsme zvládli, všude bylo skvěle uklizeno.
20. 1. 2022 Hrubá stavba schodišťových věží je dokončena. Připravuje se výstavba prosklené výtahové šachty. Prostor podkroví je rozčleněn příčkami na jednotlivé místnosti, provádějí se stropy. Jsou dokončeny hlavní trasy inženýrských sítí, tj. rozvody vzduchotechniky, vody, kanalizace, topení. V nižších podlažích škol se postupně vyměňují prosklené příčky za nové.






















